Send Us An Email
913-908-5756
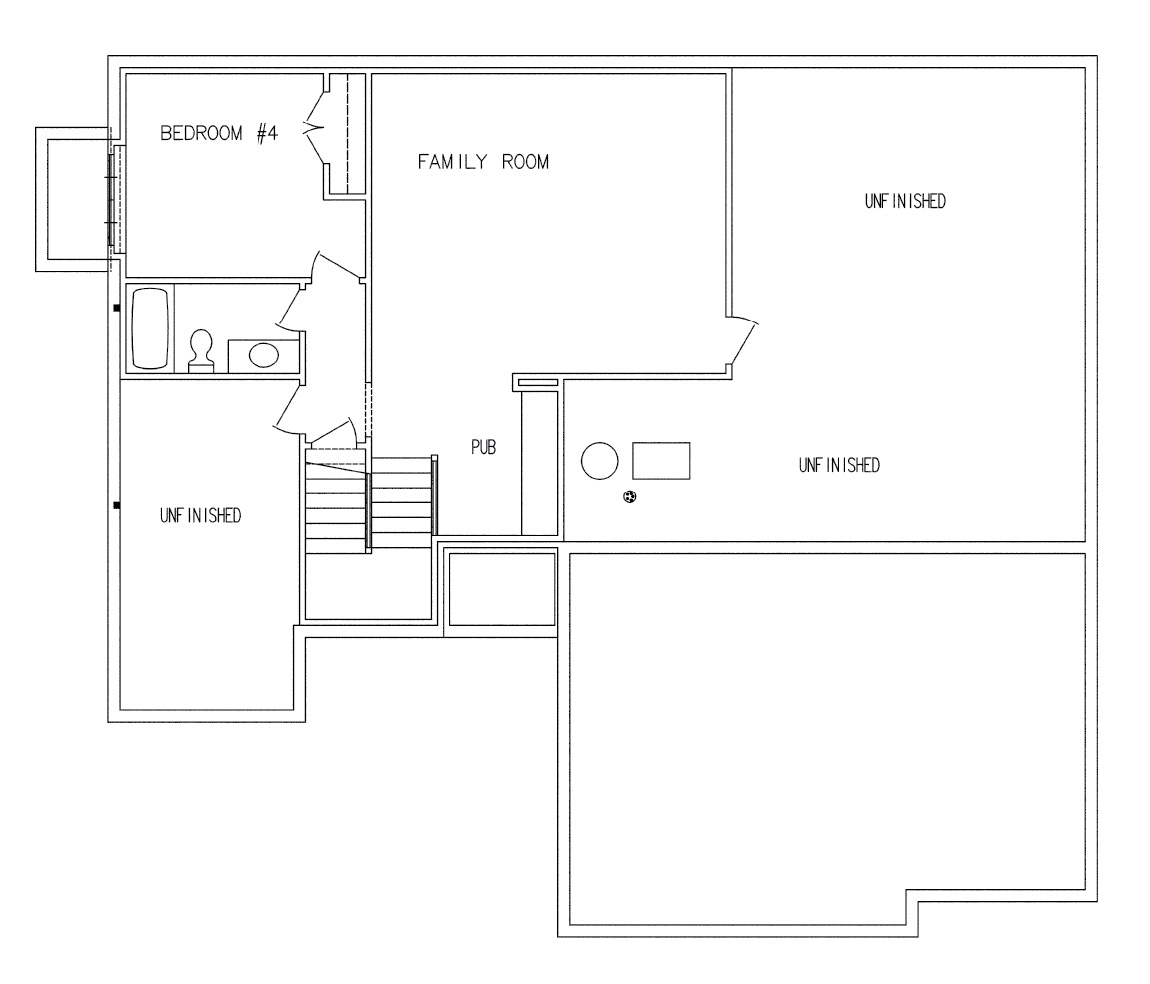
The Paige
4 Beds
3 Baths
2345 Sq.Ft.
PHOTO GALLERY
No items found.
Copyright 2025 Classic Homes KC | Website by Blue Carbon Design
HOMES FOR SALE
BUILD A NEW HOME
OUR FLOOR PLANS
WHERE WE BUILD
CONTACT US